
Vollzug des Baugesetzbuches; Aufstellung des vorhabenbezogenen Bebauungsplanes „Erweiterung Vitalhotel Mittelburg“ (Vorentwurf) Frühzeitige Öffentlichkeitsbeteiligung gemäß § 3 Abs. 1 BauGB
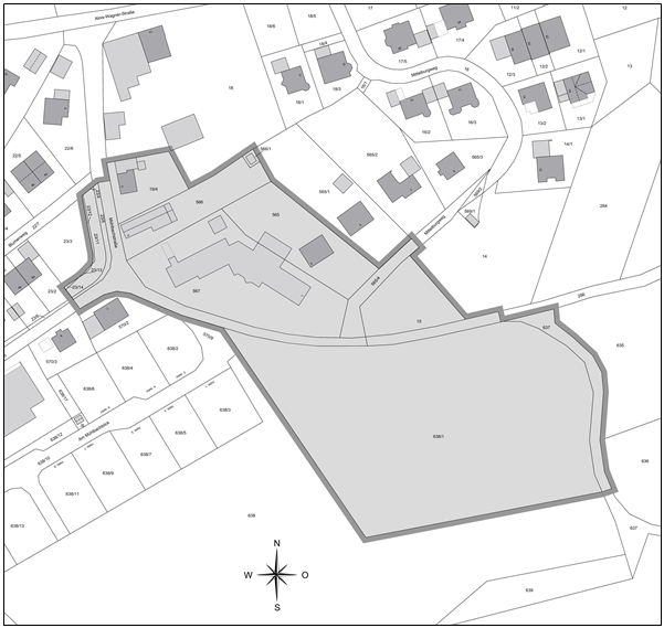
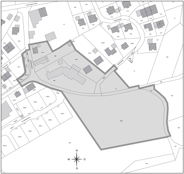
Der Gemeinderat Oy-Mittelberg hat bereits in der öffentlichen Sitzung am 22.11.2021 den Beschluss zur Aufstellung des vorhabenbezogenen Bebauungsplanes „Erweiterung Vitalhotel Mittelburg“ gefasst und das Verfahren hierfür eingeleitet. Das insgesamt ca. 1,89 ha umfassende Vorhabengebiet befindet sich am südöstlichen Rand der Ortslage Mittelberg, zwischen der Mühlbachstraße (teilweise einschließlich) und dem Wohngebiet „Am Mühlbachblick“ im Westen sowie der bereits bestehenden Wohn- und sonstigen Bebauung im Umfeld des Mittelburgweges im Osten (siehe beigefügter Lageplan). Es umfasst die Grundstücke Flur Nrn. 15, 19/4, 23/4, 23/5, 23/11, 23/12, 23/14, 565, 566, 566/1, 567 und 638/1 sowie Teilflächen der Grundstücke Flur Nrn. 19/5 (Mühlbachstraße), 286 und 565/4 (Mittelburgweg), jeweils Gemarkung Mittelberg. Das Verfahren zur Aufstellung des vorhabenbezogenen Bebauungsplanes „Erweiterung Vitalhotel Mittelburg“ wird im Regelverfahren mit zwei Beteiligungsschritten (frühzeitige Beteiligung, öffentliche Auslegung / erneute Beteiligung) und Umweltbericht durchgeführt.
Mit der Aufstellung des vorhabenbezogenen Bebauungsplanes „Erweiterung Vitalhotel Mittelburg“ soll für das zwischenzeitlich in vierter Generation familiengeführte Wellnesshotel Mittelburg eine zeitgemäße Erneuerung dessen historisch gewachsener Gebäudestrukturen und eine Erweiterung dessen Angebotes u. a. um ein Chaletdorf mit eigenem Badeteich etc. planungsrechtlich gesichert werden. Demzufolge wird der Großteil des Vorhabengebietes im vorhabenbezogenen Bebauungsplan auf Grundlage der Vorgaben des Vorhaben- und Erschließungsplanes der Vorhabenträger als „sonstiges Sondergebiet“ gemäß § 11 BauNVO mit der Zweckbestimmung „Hotel“ (SOHotel) festgesetzt. Die Flächen im südlichen Randbereich werden als „Flächen für Maßnahmen zum Schutz, zur Pflege und zur Entwicklung von Boden, Natur und Landschaft“ festgesetzt und sollen künftig als naturschutzrechtliche Ausgleichsflächen genutzt werden. Zwischen dem Sondergebiet und diesen Ausgleichsflächen wird der neue Verlauf des Mittelburgweges als „Verkehrsfläche“ mit der besonderen Zweckbestimmung „Landwirtschaftlicher Verkehr“ planungsrechtlich gesichert. Neben den öffentlichen Verkehrsflächen der Mühlbachstraße und des Mittelburgweges werden auch die gesamten baulichen und sonstigen Anlagen des bereits seit Jahrzehnten bestehenden Hotelkomplexes des Vitalhotels Mittelburg nach § 12 Abs. 4 BauGB in den Umgriff des vorhabenbezogenen Bebauungsplanes einbezogen, um auch die maßgebenden Vorgaben (überbaubare Grundstücksflächen, Höhenentwicklung, zulässige Kubatur etc.) für eine perspektivische Neuordnung dieses Areals planungsrechtlich sichern zu können. Der eigentliche Vorhabenbezug erstreckt sich aber lediglich auf das im ersten Schritt als bauliche Erweiterung des Hotelkomplexes vorgesehene Chaletdorf und die damit in Verbindung stehenden Anlagen.
Der vom Gemeinderat in der öffentlichen Sitzung am 24.11.2025 gebilligte Vorentwurf des vorhabenbezogenen Bebauungsplanes „Erweiterung Vitalhotel Mittelburg“, bestehend aus der Planzeichnung (Teil A), dem Textteil (Teil B), dem Vorhaben- und Erschließungsplan (Teil C bis F) und der Begründung mit vorläufigem Umweltbericht (Teil G), jeweils in der Fassung vom 24.11.2025, liegt in der Gemeindeverwaltung Oy-Mittelberg, Hauptstraße 12, in 87466 Oy-Mittelberg in der Zeit
vom 15. Dezember 2025 bis einschließlich 30. Januar 2026
im Rahmen der frühzeitigen Öffentlichkeitsbeteiligung gemäß § 3 Abs. 1 BauGB zu jedermanns Einsichtnahme öffentlich aus. In diesem Zeitraum besteht während der bekannten Öffnungszeiten die Möglichkeit sich über die allgemeinen Zwecke und Ziele sowie die wesentlichen Auswirkungen des vorhabenbezogenen Bebauungsplanes zu unterrichten und Anregungen sowie Hinweise zum Vorentwurf des vorhabenbezogenen Bebauungsplanes „Erweiterung Vitalhotel Mittelburg“ schriftlich (nach Möglichkeit auf elektronischem Weg an bauamt@oy-mittelberg.de) oder zur Niederschrift vorzubringen. Unter https://www.oy-mittelberg.info/aktuelles/amtliche-bekanntmachungen/ können die Planunterlagen auch online auf der Homepage der Gemeinde eingesehen werden.
Es wird darauf hingewiesen, dass nicht fristgerecht abgegebene Stellungnahmen bei der Beschlussfassung über den Entwurf des vorhabenbezogenen Bebauungsplanes „Erweiterung Vitalhotel Mittelburg“ unberücksichtigt bleiben können, wenn die Gemeinde den Inhalt nicht kannte und nicht hätte kennen müssen und deren Inhalt für die Rechtmäßigkeit des vorhabenbezogenen Bebauungsplanes „Erweiterung Vitalhotel Mittelburg“ nicht von Bedeutung ist.
Umgriff vorhabenbezogener Bebauungsplan „Erweiterung Vitalhotel Mittelburg“ (ohne Maßstab)
Datenschutz:
Die Verarbeitung personenbezogener Daten erfolgt auf der Grundlage der Art. 6 Abs. 1 Buchstabe e (DSGVO) i.V.m. § 3 BauGB und dem BayDSG. Sofern Sie Ihre Stellungnahme ohne Absenderangaben abgeben, erhalten Sie keine Mitteilung über das Ergebnis der Abwägung. Weitere Informationen entnehmen Sie bitte dem Formblatt „Datenschutzrechtliche Informationspflichten im Bauleitplanverfahren nach Art.13 und 14 DSGVO“, das ebenfalls öffentlich ausliegt.
Oy-Mittelberg, den 08.12.2025
gez.
Lucas Reisacher
Erster Bürgermeister