
Bekanntmachung des Satzungsbeschlusses zur Einbeziehungssatzung „Maria Rain - west-lich Kirchweg“
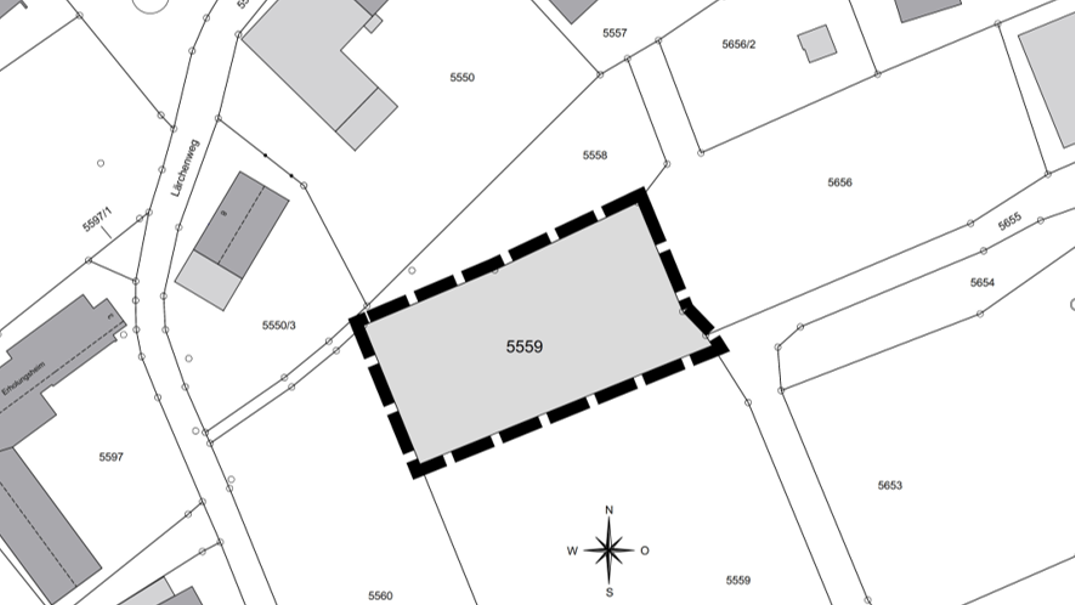
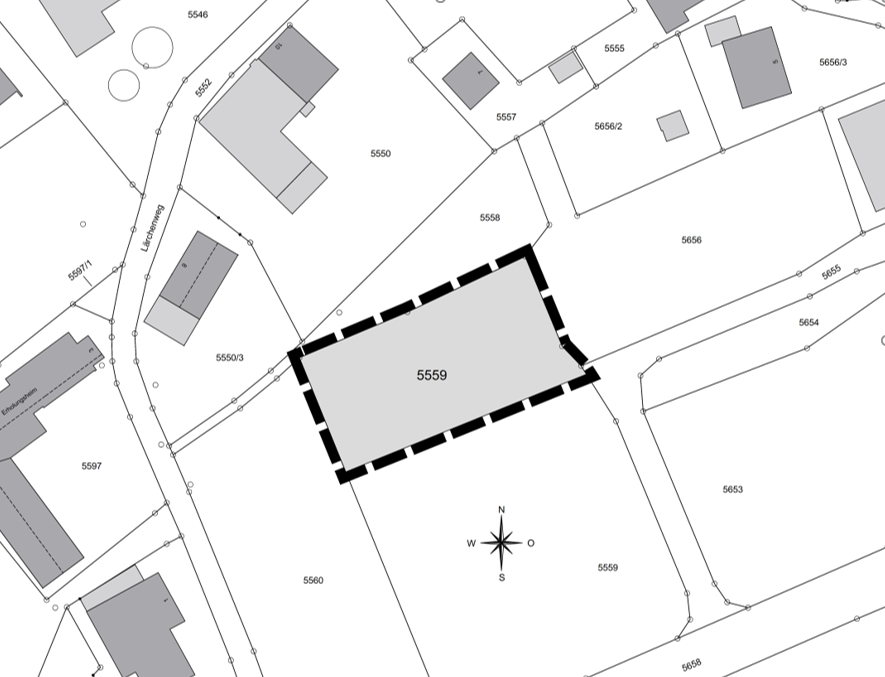
Die Gemeinde Oy-Mittelberg hat mit Beschluss des Gemeinderates vom 19.09.2024 die Satzung über die Einbeziehung einer Teilfläche des Grundstückes Flur. Nr. 5559, Gemarkung Mittelberg, in den im Zusammenhang bebauten Ort Maria Rain (Einbeziehungssatzung „Maria Rain - westlich Kirchweg“), bestehend aus der Planzeichnung mit Satzungstext (Teil A), in der Fassung vom 18.09.2024, als Satzung beschlossen. Die Begründung (Teil B), ebenfalls in der Fassung vom 18.09.2024, wurde als Bestandteil der Einbeziehungssatzung „Maria Rain - westlich Kirchweg“ gebilligt. Die Einbeziehungssatzung „Maria Rain - westlich Kirchweg“ umfasst eine Teilfläche des Grundstückes Flur Nr. 5559 östlich des Lärchenweges und westlich des Parkplatzes der Wallfahrtskirche Maria Rain, im Südwesten der Ortslage Maria Rain (siehe Lageplan, ohne Maßstab).
Der Satzungsbeschluss wird hiermit gemäß § 10 Abs. 3 des Baugesetzbuches (BauGB) ortsüblich bekannt gemacht. Mit dieser Bekanntmachung tritt die Einbeziehungssatzung „Maria Rain - westlich Kirchweg“ in Kraft. Jedermann kann die Einbeziehungssatzung „Maria Rain - westlich Kirchweg“, bestehend aus der Planzeichnung mit Satzungstext (Teil A) und der Begründung (Teil B), in der Gemeindeverwaltung der Gemeinde Oy-Mittelberg, Hauptstraße 12, 87466 Oy-Mittelberg, während der üblichen Dienststunden einsehen und über deren Inhalt Auskunft verlangen. Darüber hinaus können die Unterlagen auch auf der Homepage der Gemeinde Oy-Mittelberg unter https://www.oy-mittelberg.info/bauen-wohnen/wohnungsbau/bebauungsplaene/ eingesehen werden.
Bei der Einbeziehungssatzung „Maria Rain - westlich Kirchweg“ wurde von der Umweltprüfung nach § 2 Abs. 4 BauGB, vom Umweltbericht nach § 2 a BauGB, von der Angabe nach § 3 Abs. 2 Satz 2 BauGB, welche Arten umweltbezogener Informationen verfügbar sind, sowie von der zusammenfassenden Erklärung nach § 10 a Abs. 1 BauGB abgesehen, da das Verfahren zur Aufstellung der Einbeziehungssatzung „Maria Rain - westlich Kirchweg“ im sogenannten vereinfachten Verfahren nach § 13 BauGB durchgeführt wurde. Auf die Voraussetzungen für die Geltendmachung der Verletzung von Verfahrens- und Formvorschriften und von Mängeln der Abwägung sowie die Rechtsfolgen des § 215 Abs. 1 BauGB wird hingewiesen.
Unbeachtlich werden demnach:
eine nach § 214 Abs. 1 Satz 1 Nr. 1 bis 3 BauGB beachtliche Verletzung der dort bezeichneten Verfahrens- und Formvorschriften,
eine unter Berücksichtigung des § 214 Abs. 2 BauGB beachtliche Verletzung der Vorschriften über das Verhältnis des Bebauungsplans / der Einbeziehungssatzung und des Flächennutzungsplans,
nach § 214 Abs. 3 Satz 2 BauGB beachtliche Mängel des Abwägungsvorgangs und
nach § 214 Abs. 2 a im vereinfachten Verfahren beachtliche Fehler,
wenn sie nicht innerhalb eines Jahres seit Bekanntmachung der Einbeziehungssatzung „Maria Rain - westlich Kirchweg“ schriftlich gegenüber der Gemeinde geltend gemacht worden sind; der Sachverhalt, der die Verletzung oder den Mangel begründen soll, ist darzulegen. Außerdem wird auf die Vorschriften des § 44 Abs. 3 Satz 1 und 2 sowie Abs. 4 BauGB hingewiesen. Danach erlöschen Entschädigungsansprüche für nach den §§ 39 bis 42 BauGB eingetretene Vermögensnachteile, wenn nicht innerhalb von drei Jahren nach Ablauf des Kalenderjahres, in dem die Vermögensnachteile eingetreten sind, die Fälligkeit des Anspruches herbeigeführt wird.
Oy-Mittelberg, den 14.10.2024
gez.
Lucas Reisacher
Erster Bürgermeister
Der Satzungsbeschluss wird hiermit gemäß § 10 Abs. 3 des Baugesetzbuches (BauGB) ortsüblich bekannt gemacht. Mit dieser Bekanntmachung tritt die Einbeziehungssatzung „Maria Rain - westlich Kirchweg“ in Kraft. Jedermann kann die Einbeziehungssatzung „Maria Rain - westlich Kirchweg“, bestehend aus der Planzeichnung mit Satzungstext (Teil A) und der Begründung (Teil B), in der Gemeindeverwaltung der Gemeinde Oy-Mittelberg, Hauptstraße 12, 87466 Oy-Mittelberg, während der üblichen Dienststunden einsehen und über deren Inhalt Auskunft verlangen. Darüber hinaus können die Unterlagen auch auf der Homepage der Gemeinde Oy-Mittelberg unter https://www.oy-mittelberg.info/bauen-wohnen/wohnungsbau/bebauungsplaene/ eingesehen werden.
Bei der Einbeziehungssatzung „Maria Rain - westlich Kirchweg“ wurde von der Umweltprüfung nach § 2 Abs. 4 BauGB, vom Umweltbericht nach § 2 a BauGB, von der Angabe nach § 3 Abs. 2 Satz 2 BauGB, welche Arten umweltbezogener Informationen verfügbar sind, sowie von der zusammenfassenden Erklärung nach § 10 a Abs. 1 BauGB abgesehen, da das Verfahren zur Aufstellung der Einbeziehungssatzung „Maria Rain - westlich Kirchweg“ im sogenannten vereinfachten Verfahren nach § 13 BauGB durchgeführt wurde. Auf die Voraussetzungen für die Geltendmachung der Verletzung von Verfahrens- und Formvorschriften und von Mängeln der Abwägung sowie die Rechtsfolgen des § 215 Abs. 1 BauGB wird hingewiesen.
Unbeachtlich werden demnach:
eine nach § 214 Abs. 1 Satz 1 Nr. 1 bis 3 BauGB beachtliche Verletzung der dort bezeichneten Verfahrens- und Formvorschriften,
eine unter Berücksichtigung des § 214 Abs. 2 BauGB beachtliche Verletzung der Vorschriften über das Verhältnis des Bebauungsplans / der Einbeziehungssatzung und des Flächennutzungsplans,
nach § 214 Abs. 3 Satz 2 BauGB beachtliche Mängel des Abwägungsvorgangs und
nach § 214 Abs. 2 a im vereinfachten Verfahren beachtliche Fehler,
wenn sie nicht innerhalb eines Jahres seit Bekanntmachung der Einbeziehungssatzung „Maria Rain - westlich Kirchweg“ schriftlich gegenüber der Gemeinde geltend gemacht worden sind; der Sachverhalt, der die Verletzung oder den Mangel begründen soll, ist darzulegen. Außerdem wird auf die Vorschriften des § 44 Abs. 3 Satz 1 und 2 sowie Abs. 4 BauGB hingewiesen. Danach erlöschen Entschädigungsansprüche für nach den §§ 39 bis 42 BauGB eingetretene Vermögensnachteile, wenn nicht innerhalb von drei Jahren nach Ablauf des Kalenderjahres, in dem die Vermögensnachteile eingetreten sind, die Fälligkeit des Anspruches herbeigeführt wird.
Oy-Mittelberg, den 14.10.2024
gez.
Lucas Reisacher
Erster Bürgermeister