

Vollzug des Baugesetzbuches; Einbeziehungssatzung „Maria Rain - westlich Kirchweg“ (Entwurf)
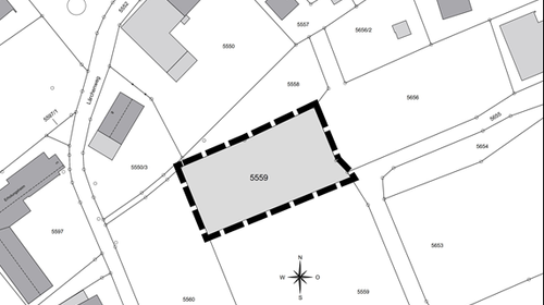
Der Gemeinderat der Gemeinde Oy-Mittelberg hat in der Sitzung vom 22.07.2024 den Beschluss zur Aufstellung einer Satzung über die Einbeziehung einer Teilfläche des Grundstückes Flur Nr. 5559 der Gemarkung Mittelberg, in den im Zusammenhang bebauten Ort Maria Rain gemäß § 34 Abs. 4 Satz 1 Nr. 3 BauGB gefasst, die unter der Bezeichnung Einbeziehungssatzung „Maria Rain - westlich Kirchweg“ geführt werden soll. Die überplante Teilfläche des Grundstückes Flur Nr. 5559 befindet sich östlich des Lärchenweges und westlich des Parkplatzes der Wallfahrtskirche Maria Rain, im Südwesten der Ortslage Maria Rain. Mit der Ausarbeitung der Einbeziehungssatzung „Maria Rain - westlich Kirchweg“ wurde die Arnold Consult AG in 86438 Kissing beauftragt. Das Verfahren zur Aufstellung der Einbeziehungssatzung „Maria Rain - westlich Kirchweg“ erfolgt im sog. vereinfachten Verfahren nach § 13 BauGB. In diesem Verfahren wird von der Umweltprüfung nach § 2 Abs. 4 BauGB und von der Erstellung eines eigenständigen Umweltberichtes nach § 2a Satz 2 Nr. 2 BauGB abgesehen.
Mit der Einbeziehungssatzung „Maria Rain - westlich Kirchweg“ sollen für eine im südwestlichen Teil der Ortslage Maria Rain gelegene Teilfläche des Grundstückes Flur Nr. 5559 der Gemarkung Mittelberg die planungsrechtlichen Voraussetzungen zur Errichtung von zwei Wohnhäusern geschaffen werden. Die in der Einbeziehungssatzung getroffenen Mindestvorgaben zum Maß der baulichen Nutzung (Grundfläche, Höhenlage), zu den überbaubaren Grundstücksflächen (Baugrenzen) und zur Gestaltung (Dachform) sollen eine städtebaulich- und ortsbildverträgliche Arrondierung der vorhandenen dörflichen Wohn- und sonstigen Baustrukturen der Ortslage Maria Rain gewährleisten. Neben der Sicherung einer angemessenen Mindestdurchgrünung der privaten Grundstücksflächen werden in der Einbeziehungssatzung auch die zur Kompensation der mit der geplanten wohnbaulichen Entwicklung verbundenen Eingriffe in Natur und Landschaft erforderliche naturschutzrechtliche Ausgleichsfläche und die hierauf umzusetzenden Ausgleichsmaßnahmen planungsrechtlich gesichert und der Satzung verbindlich zugeordnet. Die Erschließung der neuen Wohngebäude für den motorisierten Individualverkehr etc. ist über die unmittelbar östlich an das Satzungsgebiet anliegende Zufahrtsstraße zum Parkplatz der östlich liegenden Wallfahrtskirche Maria Rain gewährleistet.
Der vom Gemeinderat am 22.07.2024 gebilligte Entwurf der Einbeziehungssatzung „Maria Rain - westlich Kirchweg“, bestehend aus der Planzeichnung mit Satzungstext (Teil A) und der Begründung (Teil B), jeweils in der Fassung vom 22.07.2024, liegt in der Gemeindeverwaltung Oy-Mittelberg, Hauptstraße 12, in 87466 Oy-Mittelberg in der Zeit
vom 29. Juli 2024 bis einschließlich 30. August 2024
im Rahmen der öffentlichen Auslegung gemäß § 3 Abs. 2 i. V. m. § 13 BauGB zu jedermanns Einsichtnahme öffentlich aus. In diesem Zeitraum besteht während der bekannten Dienstzeiten die Möglichkeit sich über die allgemeinen Zwecke und Ziele sowie die wesentlichen Auswirkungen der Einbeziehungssatzung „Maria Rain - westlich Kirchweg“ zu unterrichten und Anregungen sowie Hinweise zum Entwurf der Einbeziehungssatzung „Maria Rain - westlich Kirchweg“ schriftlich (nach Möglichkeit auf elektronischem Weg an gemeinde@oy-mittelberg.de) oder zur Niederschrift vorzubringen.
Datenschutz:
Die Verarbeitung personenbezogener Daten erfolgt auf der Grundlage der Art. 6 Abs. 1 Buchstabe e (DSGVO) i.V.m. § 3 BauGB und dem BayDSG. Sofern Sie Ihre Stellungnahme ohne Absenderangaben abgeben, erhalten Sie keine Mitteilung über das Ergebnis der Abwägung. Weitere Informationen entnehmen Sie bitte dem Formblatt „Datenschutzrechtliche Informationspflichten im Bauleitplanverfahren nach Art.13 und 14 DSGVO“, das ebenfalls öffentlich ausliegt.
Oy-Mittelberg, den 25.06.2024
gez.
Lucas Reisacher
Erster Bürgermeister
Mit der Einbeziehungssatzung „Maria Rain - westlich Kirchweg“ sollen für eine im südwestlichen Teil der Ortslage Maria Rain gelegene Teilfläche des Grundstückes Flur Nr. 5559 der Gemarkung Mittelberg die planungsrechtlichen Voraussetzungen zur Errichtung von zwei Wohnhäusern geschaffen werden. Die in der Einbeziehungssatzung getroffenen Mindestvorgaben zum Maß der baulichen Nutzung (Grundfläche, Höhenlage), zu den überbaubaren Grundstücksflächen (Baugrenzen) und zur Gestaltung (Dachform) sollen eine städtebaulich- und ortsbildverträgliche Arrondierung der vorhandenen dörflichen Wohn- und sonstigen Baustrukturen der Ortslage Maria Rain gewährleisten. Neben der Sicherung einer angemessenen Mindestdurchgrünung der privaten Grundstücksflächen werden in der Einbeziehungssatzung auch die zur Kompensation der mit der geplanten wohnbaulichen Entwicklung verbundenen Eingriffe in Natur und Landschaft erforderliche naturschutzrechtliche Ausgleichsfläche und die hierauf umzusetzenden Ausgleichsmaßnahmen planungsrechtlich gesichert und der Satzung verbindlich zugeordnet. Die Erschließung der neuen Wohngebäude für den motorisierten Individualverkehr etc. ist über die unmittelbar östlich an das Satzungsgebiet anliegende Zufahrtsstraße zum Parkplatz der östlich liegenden Wallfahrtskirche Maria Rain gewährleistet.
Der vom Gemeinderat am 22.07.2024 gebilligte Entwurf der Einbeziehungssatzung „Maria Rain - westlich Kirchweg“, bestehend aus der Planzeichnung mit Satzungstext (Teil A) und der Begründung (Teil B), jeweils in der Fassung vom 22.07.2024, liegt in der Gemeindeverwaltung Oy-Mittelberg, Hauptstraße 12, in 87466 Oy-Mittelberg in der Zeit
vom 29. Juli 2024 bis einschließlich 30. August 2024
im Rahmen der öffentlichen Auslegung gemäß § 3 Abs. 2 i. V. m. § 13 BauGB zu jedermanns Einsichtnahme öffentlich aus. In diesem Zeitraum besteht während der bekannten Dienstzeiten die Möglichkeit sich über die allgemeinen Zwecke und Ziele sowie die wesentlichen Auswirkungen der Einbeziehungssatzung „Maria Rain - westlich Kirchweg“ zu unterrichten und Anregungen sowie Hinweise zum Entwurf der Einbeziehungssatzung „Maria Rain - westlich Kirchweg“ schriftlich (nach Möglichkeit auf elektronischem Weg an gemeinde@oy-mittelberg.de) oder zur Niederschrift vorzubringen.
Datenschutz:
Die Verarbeitung personenbezogener Daten erfolgt auf der Grundlage der Art. 6 Abs. 1 Buchstabe e (DSGVO) i.V.m. § 3 BauGB und dem BayDSG. Sofern Sie Ihre Stellungnahme ohne Absenderangaben abgeben, erhalten Sie keine Mitteilung über das Ergebnis der Abwägung. Weitere Informationen entnehmen Sie bitte dem Formblatt „Datenschutzrechtliche Informationspflichten im Bauleitplanverfahren nach Art.13 und 14 DSGVO“, das ebenfalls öffentlich ausliegt.
Oy-Mittelberg, den 25.06.2024
gez.
Lucas Reisacher
Erster Bürgermeister